语言
Deutsch
English
中文
Wordwide
首 页
公司概况
新闻中心
产品展示
行业应用
资料下载
联系我们
产品展示
吨袋(大袋)包装技术
全自动吨袋包装机
人工上袋吨袋包装机DSC-1000-DN-T
自动装车技术
全自动装车机
托盘全自动包装机
吨袋全自动装车机
散料全自动装车机
火车吨袋装车机
机械手全自动装车机
阀口袋包装技术
自动上袋阀口包装机
螺旋给料阀口包装机
叶轮给料阀口包装机
气流送料阀口包装机
混合送料阀口包装机
炭黑全自动阀口包装机
敞口袋包装技术
全自动敞口袋包装机
DCS-Z-D颗粒包装机
DCS-Z-S颗粒包装机
DCS-Z-W颗粒包装机
DCS-P-W-50混合物料包装机
粉体包装技术
自动上袋包装机
双工位抽气式包装机
六工位抽气式包装机
DCS-50F包装机
高速自动包装技术
自动码垛技术
高位码垛机
机械手码垛机
立轴码垛机
智能行车技术
主页
>
产品展示
>
自动装车技术
>
散料全自动装车机
>
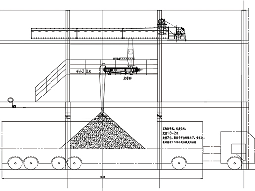
TAL-AL-BM
散料全自动装车机
TAL系列散装全自动装车机可实现无人化、智能化装车,可以适用各种箱式、灌装的散装物料装车要求。
功能特点:
装车速度快,适用于各类13M、17M车厢;自动化程度高,车辆停在指定区域后,系统根据指令要求判定容积比自动装车;智能化完成车辆扫描,形成车辆的位置信息和长宽高数据,由系统自动完成装车工作。
联系方式
预知更多信息,请联系我们
全国服务热线:19399107809为您提供全方位报价方案!!
相关资料
更多>>
服务热线
15266603719
给我们留言