公司概况新闻中心产品展示行业应用资料下载联系我们



 

产品介绍

全自动吨袋包装机,也叫全自动大袋包装机、全自动吨袋包装秤、全自动大袋包装秤,是一种全自动吨袋包装设备,全自动吨袋包装机克服了吨袋包装机(吨袋包装秤、大袋包装机、大袋包装秤)需要人工上袋(挂袋)的缺点,实现了吨袋的自动上袋、物料自动称量、自动灌袋、自动输送、自动热合封口、自动喷码打印相关生产信息。
全自动吨袋包装机可以应用在需要大袋包装的任何生产线,可以完美替代半自动人工上袋吨袋包装机,颗粒物料和粉体物料皆可以使用全自动吨袋包装机实现物料的自动包装盒输送。随着人工费用的增加,全自动吨袋包装机的使用推广范围越来越大。

产品机构

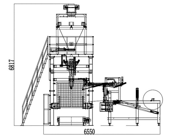
全自动吨袋包装系统中所包括的自动上袋卷机构、空袋供给输送机、自动上袋装置、袋口自动校正机构、称重物料仓、自动灌装下料装置、涨袋装置、抱袋装置、夹袋牵引封口装置、提升整理装置、承重机架、检修平台、6米吨包输送机、预留除尘系统及全套电气控制系统、步梯及围栏等组成。

功能特点

1、吨包袋的自动输送

2、吨包袋自动上袋

3、吨袋包装袋自动升降

4、自动充气涨袋

5、物料自动灌包

6、包装袋中气体自动排出

7、吨袋袋口自动热合封口

8、成品吨包袋的输送

9、生产日期、批号等资料自动喷码打印

10、包装袋袋口自动整理

11、吨包装袋袋口系带调整,利于叉车或行车起吊码垛或者装车。

工作流程


吨袋按照150条袋子的规格卷成一卷,人工将整捆包装袋放入袋框,空包装袋在输送机上前移,当包装袋袋口到达合适位置时,传感器将包装袋到位信号传送到总控PLc,plc发出指令,上下吸盘将包装袋袋口吸住并拉开,机械手将包装袋袋口夹住,并将包装袋前移、提升,将包装袋套入下料口;同时称重系统在接受到包装袋套袋成功信号后,将物料按照设定重力投入吨包装袋中,完成物料的灌装。灌装完成后,撑袋机构将包装袋袋口拉伸,超声波封口机将袋口缝合,辅助机构将袋口整理,调姿机构将包装袋系带提起并调整系带方向,利于后续码垛系统自动码垛。至此,全自动吨袋包装机系统完成一次吨袋的全自动灌装过程。

技术参数

包装范围:500-1000kg
包装速度:60-180包/小时
包装物料:颗粒、粉料、混合
称重精度:0.2%F、S
包装材质:袋口覆膜吨袋
给料方式:根据物料自选
压缩空气:0.5-0.8Mpa,1m³/min
功率电源:24kw/h,AC380V 50Hz
 

 

Copyright © 1996-2025 . 三维汉界 版权所有 鲁ICP备10016314号-11
技术支持:三维汉界